The Annex
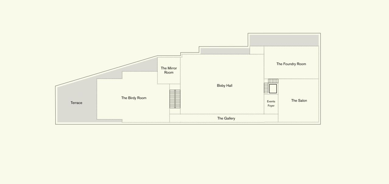
The Annex refers to our collection of venues located on the corner of John R and Farmer Street. Accessible via private entrance, the expansive space includes The Birdy Room, Foundry Room, Bixby Hall, and connective spaces—the Mirror Room, The Gallery and The Salon. The Annex can be reserved in full or per individual space.

The Annex can be reserved in full or per individual space.
Full Level & The Salon Capacity: 350
Weddings & Dancefloor Capacity: 170
